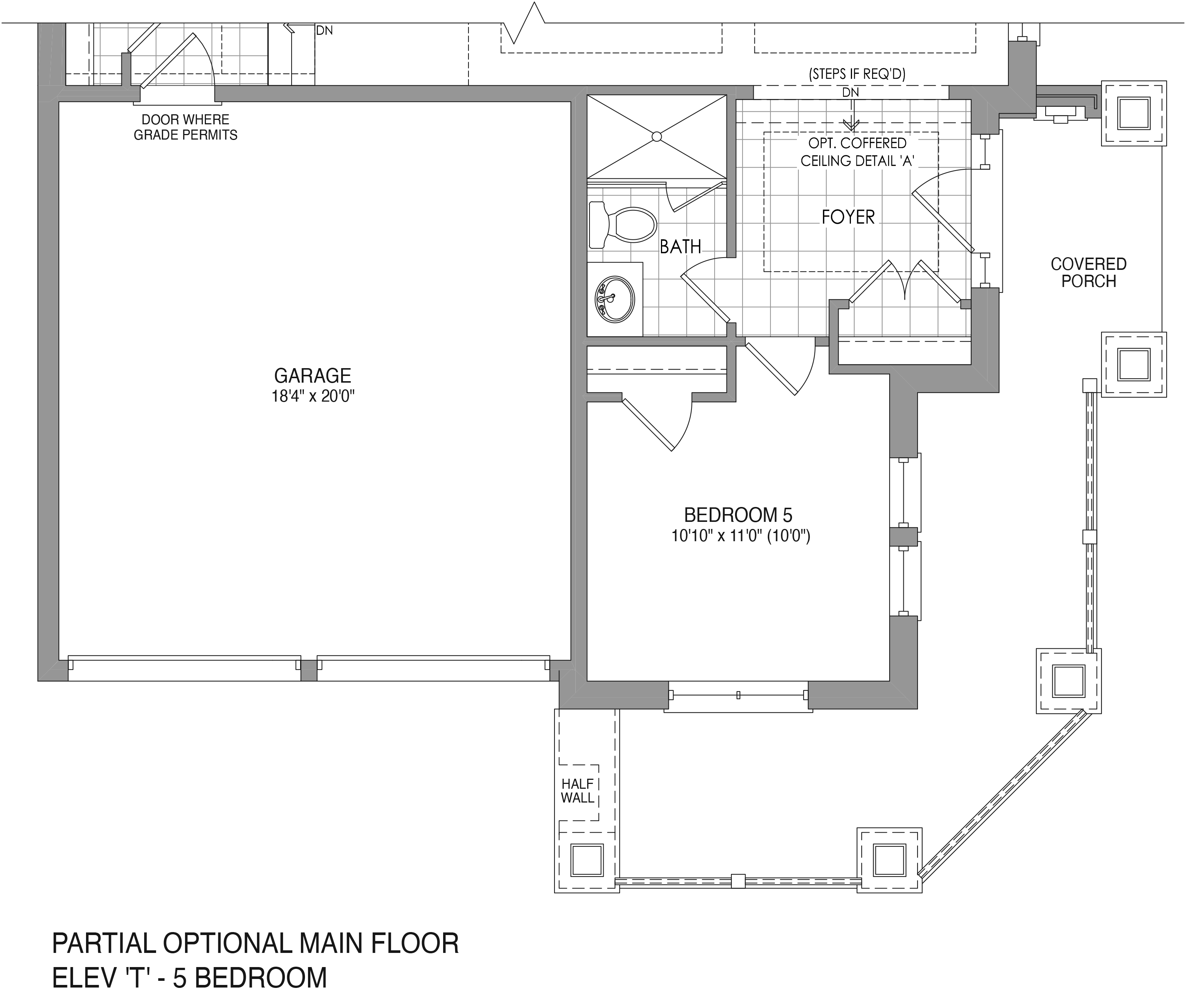
Elevation T | 2,997 sq. ft. Bedrooms : 4/5 Bathrooms : 3.5/4 Garage : Double
Main Floor | Opt Main Floor 5th Bed | Upper Floor | Basement